Montagelasche Montageblitz XL-SP 340x43x1,5 / 50 Stück (VE)
Unser 3D-justierbarer, biegesteifer Montageanker SP mit dem „Montageblitz XL“-Sickenprofil ist optimiert für die untere, seitliche und obere Befestigung von Fenstern in der Laibung auch bei bereits aufgebrachter Dämmung.
Die Ausführung SP mit vormontiertem M8-Gewindestift (Abzugskraft 800 N) und zugehöriger Schraubplatte eignet sich besonders für die Vormontage am Fenster, so dass das komplette Fensterelement nur noch in der Laibung befestigt werden muss.
Die Höhenverstellung erfolgt mit Hilfe eines Innensechskant-Schlüssels.
Diese Montageschiene ist PIV-geprüft und wird von uns für mittlere Belastungen empfohlen. Genaue Angaben zur Belastung entnehmen Sie bitte den Datenblättern. Lieferumfang: Montagelasche mit festdrehbar gelagertem Gewindestift M8 und Schraubplatte 60x15x3,0 mm
Werkstoff: Stahl (DX51D+Z150MAC)
Oberfläche: sendzimirverzinkt
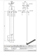
Abmessungen: LxBxs: 340x43x1,5 mm
Höhenverstellbar: 15–50 mm
Kröpfung: ohne
Ausführung: Mit festdrehbar gelagertem Gewindestift M8 (Abzugskraft 800N) und Schraubplatte 60x15x3,0 mm mit M8 Gewinde
Bohrloch-Ø Mauerwerkseite: 1x Ø 8,1 mm, 1x LL Ø 8,1x30 mm
Bohrloch-Ø Fensterseite: 2x Ø 5,5 mm
Anwendung: Für die untere, seitliche und obere Befestigung
Einfache Bestellmöglichkeit
Sichere Bezahlung
Kontaktloser Versand
Schnelle Lieferung

